Уфа, Кузнецовский затон м-н, Бородинская, 20/2
Обзор квартиры в "ЖК Дом на Бородинской"
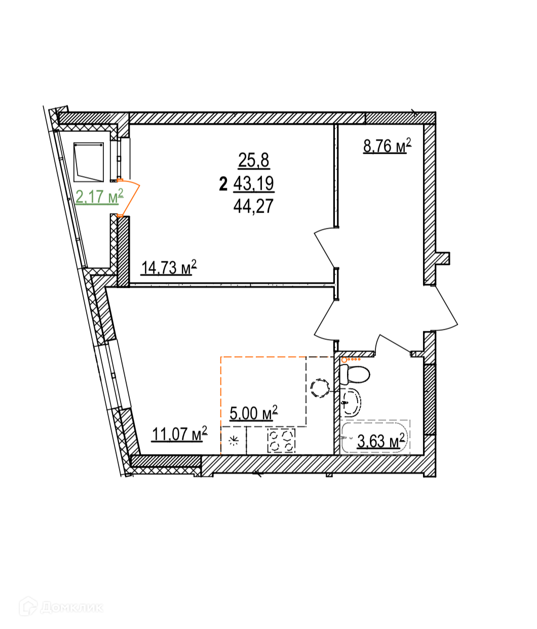
В продаже 2-комнатная квартира в современном жилом комплексе "ЖК Дом на Бородинской" 🏢.
Квартира расположена на 4-м этаже 19-этажного дома.
Прекрасный выбор для семьи.
Продуманная планировка
- ✅ Общая площадь: 44.27 м².
- ✅ Просторная жилая площадь: - м².
- ✅ Кухня: - м² — эргономичное пространство.
Преимущества квартиры
- 🔧 Вариант отделки: грубая отделка. Это позволит вам сразу приступить к ремонту.
- 🌞 Большие окна наполняют помещения естественным светом.
- 🌿 Класс жилья: Комфорт — высокое качество строительства.
Финансы и ипотека
- 💳 Ипотека от 48 774 руб/мес.
- 🏦 Подходит под семейную и IT ипотеку.
- 🤝 Эскроу-счета гарантирует спокойствие.
Для бесплатного бронирования и проверить актуальную стоимость — свяжитесь с нами прямо сейчас! 📞
Характеристики новостройки в ЖК Дом на Бородинской
- Номер квартиры: 25
- Вариант отделки: грубая отделка
- Общая площадь: 44.27 м²
- Жилая площадь: - м²
- Площадь кухни: - м²
- Класс жилья: Комфорт
- Количество комнат: 2-комнатная квартира
- Этаж: 4
- Этажность дома: 19
Полезная информация о ЖК Дом на Бородинской